
Pianta Chiesa Di San Vito Piossasco
L’interno è interamente decorato con pitture a fresco, stucchi, cornici, statue; la composizione cromatico-architettonica è altamente suggestiva e mette in grande evidenza le line del barocco piemontese.
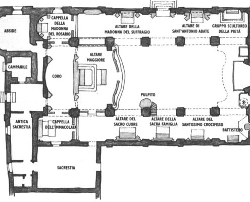
E’ una chiesa a pianta longitudinale, è suddivisa in tre navate con pavimento in pietra di Barge realizzato nel 1883.

La Conchiglia – Acanto
Nell’arte Funeraria Romana e poi in quella Cristiana, la conchiglia è posta come simbolo di vita e di resurrezione, così nel mondo Cristiano la conchiglia, simboleggiando la rinascita e alla purificazione spirituale, è legata al Battesimo (rinascita nella Grazia) ed al pellegrinaggio (viaggio di purificazione).

Il Piazzale Chiesa San Vito Piossasco
L’ampliamento della chiesa avvenne gradualmente attraverso i secoli, prolungando in avanti le navate. Nel periodo compreso tra il 1692 e il 1699, la chiesa subì, al pari di altri edifici religiosi, la profanazione da parte di diversi eserciti di passaggio.
